Details

Intelligent welding technology without hidden crack
Intelligent welding technology without hidden cracks increases the power and efficiency of components, and improves the load resistance of components.
Reasonable component size
M10 silicon wafers are designed with version 54 to fully consider component size and weight limitations in distributed applications.
Packaging and transportation compatibility
Mainstream mature packaging scheme, to achieve high reliability and low cost transportation.
Gallium-doped technology
Gallium-doped technology can overcome the optical attenuation of components and guarantee the long-term power generation stability of components.
Optimize electrical parameters
The working current of the module is about 13A, which perfectly fits the mainstream distributed series inverter.
Mechanical parameter
Battery arrangement: 108 (6×18)
Junction box Split junction box: IP68, 3 diodes
Component weight: 20.8kg
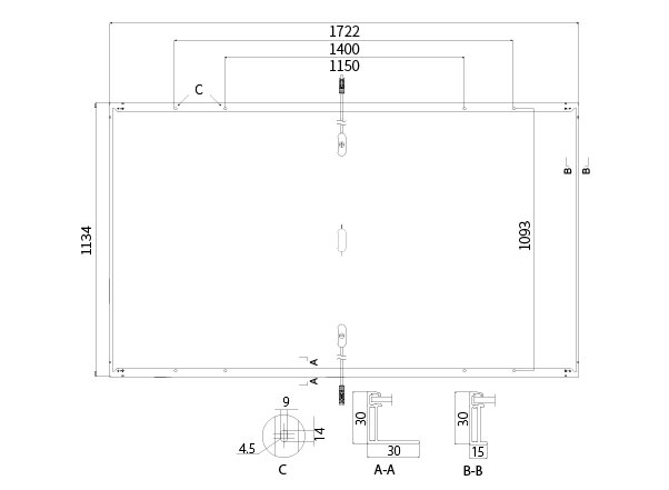
Component size: 1722×1134×30mm
Packaging Information:
36 RMB/pallet
216 pieces /20 feet flat cabinet
936 pieces /40 feet high cabinet
1008 pieces / 13.5m tablet
1224 pieces /17.5 meter slab

Electrical performance parameters (STC test)

STC: Standard Test Conditions
Electrical performance parameters (NOTC test)

NOCT: rated Normal Operating Cell Temperature
Load capacity
Maximum positive static load (e.g. snow, wind) : 5400Pa
Maximum static load on back (such as wind) : 2400Pa
Through the hail test: diameter 25mm, impact speed 23m/s
Temperature coefficient (STC test)
Short-circuit current (Isc) temperature coefficient: +0.050%/℃
Open circuit voltage (Voc) temperature coefficient: -0.265%/℃
Peak power (Pmax) temperature coefficient: -0.340%/℃
STC: Standard Test Conditions


